Меню
Контакт-центр8(912)827-47-03

Валдай 5.4

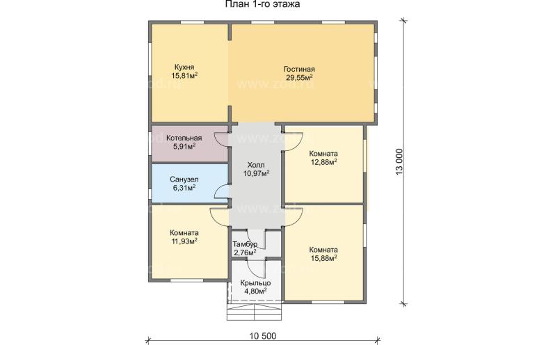
Валдай 5.4 10.5 x 13.0 112.59 м²
Характеристики
  • Общая площадь: 112.59 м2
  • Площадь застройки: 123.00 м2
  • Размеры: 10.5 x 13.0 м
  • Срок строительства: 20-25 дней
  • 2
    Санузла
  • 3
    Спальни

Выберите технологию

Выберите комплектацию

7919800 руб.
9169800 руб.
10569800 руб.
Цена
7 919 800 руб.
Цены в вашем регионе могут отличаться от представленных на сайте

Одноэтажные дома серии «Валдай» выполнены в скандинавском стиле, для которого характерна лаконичная архитектура фасада, пологая двускатная кровля с широкими выносами, минимум декоративных деталей и максимум удобств.  Внутренние помещения отличаются продуманной планировкой, где задействован каждый сантиметр площади.
Дом идеален для семей с маленькими детьми, а также для пожилых людей, которым сложно подниматься по лестнице.

Характеристики
  • Общая площадь: 112.59 м2
  • Площадь застройки: 123.00 м2
  • Размеры: 10.5 x 13.0 м
  • Срок строительства: 20-25 дней
Теплый дом

Добавить инженерный пакет

Теплый дом +

Добавить инженерный пакет

Аляска

Добавить инженерный пакет

Дом с подготовкой под чистовую отделку Дом "под ключ" Энергоэффективный дом
Фундамент Ленточный монолитный Фундамент в подарок Свайный винтовой ниже глубины промерзания Фундамент в подарок Свайный забивной железобетонный ниже глубины промерзания
Усиленная конструкция пола с подготовкой под финишную отделку Усиленная конструкция пола, настил пола - доска 35 мм Усиленная конструкция пола, настил пола - доска 35 мм
Усиленная конструкция перекрытий Усиленная конструкция перекрытий Усиленная конструкция перекрытий
Стены Брус клееный профилированный 150 на 142 мм Стены Брус клееный профилированный 170 на 142 мм антисептированный Стены Брус клееный профилированный 210 на 142 мм антисептированный
Перегородки Брус клееный 84 на 142 мм Перегородки Брус клееный 84 на 142 мм Перегородки Брус клееный 84 на 142 мм
Утепление Пол 150 мм; Потолок 150 мм Утепление Пол 150 мм; Потолок 150 мм Утепление Пол 200 мм; Потолок 200 мм
Отделка фронтонов снаружи имитация бруса Отделка фронтонов снаружи имитация бруса Отделка фронтонов снаружи имитация бруса
Подготовка под финишную отделку потолков Отделка потолков вагонкой Отделка потолков вагонкой
Гидроизоляция санузлов с подготовкой под укладку плитки Гидроизоляция санузлов с подготовкой под укладку плитки
Окна пластиковые однокамерные Окна пластиковые однокамерные Окна пластиковые двухкамерные
Устройство системы вентиляции кухни и санузлов
Входная дверь металлическая Входная дверь металлическая
Обработка конструкции пола огнебиозащитой Обработка конструкции пола огнебиозащитой
Кровля профлист оцинкованный Кровля Металлочерепица Кровля Металлочерепица
7 919 800 руб.
9 169 800 руб.
10 569 800 руб.
* действителен при покупке в комплектации "Теплый дом+", "Аляска", "4 сезона", "4 сезона+" и "Зимняя"
Характеристики
  • Общая площадь: 112.59 м2
  • Площадь застройки: 123.00 м2
  • Размеры: 10.5 x 13.0 м
  • Срок строительства: 20-25 дней
  • 2
    Санузла
  • 3
    Спальни

Выберите технологию

Выберите комплектацию

Цена
7 919 800 руб.
Цены в вашем регионе могут отличаться от представленных на сайте
Обратный звонок
* заполните обязательно