Меню
Контакт-центр8(912)827-47-03

Одноэтажные дома серии «Спутник»

Модульная конструкция
Современный функциональный "растущий" дом, который можно сконфигурировать под
себя, пристроив дополнительные модули.
  • Общая
    площадь

    от 35 м2 до
    76 м2
  • Площадь
    застройки

    от 39 м2 до
    81 м2
  • Сроки строительства

    от 5 дней
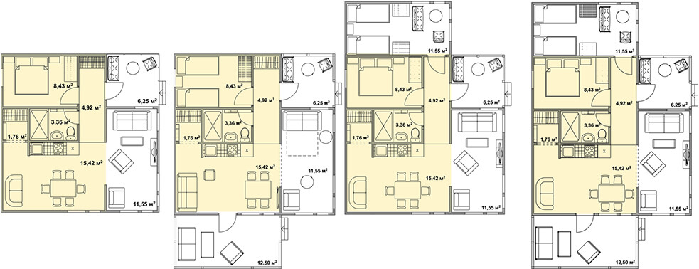
Характеристика модулей
  1. Основной модуль 35 м2
  2. Пристраиваемый модуль 11,55 м2 + терраса 6,25 м2
  3. Пристраиваемый модуль 11,55 м2
  4. Терраса 12,5 м2

Сконфигурируйте свой дом, добавив к нему дополнительные модули. В проекте «Спутник» заложена возможность пристройки дополнительных модулей и расширения площади тогда, когда вам это потребуется.

Основной модуль — загородная квартира

В основе — идея максимального полезного пространства и сокращения неиспользуемой площади к минимуму. Комфорт начинается с мелочей. Вы оцените просторную кухню-столовую, большой С/У, изолированную спальню, которая не граничит с общей зоной.

Моделируйте свой дом,
добавляя модули
Еще больше возможностей
Сногсшибательный объем и море света

Подшивка потолка в гостиной осуществляется по стропилам, благодаря чему высота потолка в высшей точке составляет почти 4 метра. Во всем доме устанавливаются ростовые окна высотой 180 см.


Обратный звонок
* заполните обязательно